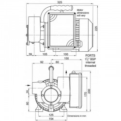
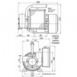
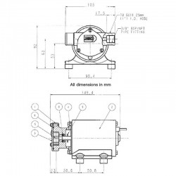
Mini bomba de porão Puppy Série 23620 - 12V - 6 L/min
460,12 €
484,01 €
NAS EXISTÊNCIAS DO FORNECEDOR
5
- -23,88 €






